物件情報:ピーフォー
天竜浜名湖鉄道「奥浜名湖駅」まで徒歩で
5分。
4階建で、観光地三ヶ日らしい景色が広がる場所です。
| 所在地 |
家賃 共益費 区費 |
敷金 礼金 |
間取 面積 |
種別 |
| 階数 | 完成 |
|||
| ピーフォー 三ヶ日町下尾奈 |
30,000円 1,000円 円 |
2ヶ月 無 |
1K 20.73㎡ |
マンション |
| 4階建 | H16.11 |
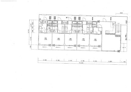
<部屋番号> ■空室
| 507 22.39㎡ |
506 20.73㎡ |
505 20.73㎡ |
503 20.73㎡ |
502 20.73㎡ |
501 22.39㎡ |
| 307 22.39㎡ |
306 20.73㎡ |
305 20.73㎡ |
303 20.73㎡ |
302 20.73㎡ |
301 22.39㎡ |
| 207 22.39㎡ |
206 20.73㎡ |
205 20.73㎡ |
203 20.73㎡ |
202 20.73㎡ |
201 22.39㎡ |
| 107 22.39㎡ |
106 20.73㎡ |
105 20.73㎡ |
103 20.73㎡ |
101(1LDK) 53.48㎡ |
|
| 物 件 概 要 | 設 備 | ||
| 名 称 | ピーフォー | 電 気 | 中部電力 |
| 住 所 | 静岡県浜松市北区三ヶ日町下尾奈81-2 | ガ ス | プロパンガス |
| 交 通 | 天浜線 奥浜名湖駅 徒歩5分 | 上水道 | 公営(浜松市) |
| 構造/完成 | 鉄骨4階建カラーベスト葺ALC / 平成16年11月 | 下水道 | 集中浄化槽 |
| 種別/戸数 | 賃貸マンション / 戸数23 | 駐車場 | 1台込 |
| 階 数 | 4階建 | 電 話 | 屋内配線有 |
| 保険等 | 火災保険・保証保険加入要 | インターネット | 環境無 |
| 契約更新 | 2年毎に更新有 | ※電話・ネット 契約工事他借主負担 | |
| 取引態様 | 仲介 (仲介手数料賃料×1ヶ月+消費税) | 間取り | 1K 20.73㎡ 101号室:1LDK 53.48㎡ |
| 家 賃 | 30,000円 101号室:55,000円 |
台所・浴室・トイレ・給湯設備 | |
| 共益費 | 1,000円 | エアコン | |
| 区 費 | 500円 | (ガスコンロ・照明器具無) | |
| 敷 金 | 2ヶ月 | ||
| 礼 金 | 無 | ||
< その他 > 入居日はお問い合わせください。区費が含まれていない場合、各自治会より徴収されます。
申込順となり、入居が決定している場合はご容赦ください。