静岡県浜松市浜名区三ヶ日町での住まい探しはお任せください。新築・戸建て・アパート・マンションから、土地探しまで。

                       →賃貸情報一覧へ戻る

物件情報:ポジション5 

p5000a.jpg p5yn.jpg p5ys2.jpg p5s2.jpg p5r.jpg p5ys3.jpg p5t.jpg p5k1.jpg p5b.jpg p5.jpg p1030257.jpg img20231030155829586433.jpg
 
天竜浜名湖鉄道「三ヶ日駅」まで徒歩3分。
三ヶ日の中心地にある物件です。

 

 所 在 地
家 賃
共益費
区 費
敷 金
礼 金
償 却 
間 取
面 積
種 別
階 数 完 成
ポジション5
三ヶ日町三ヶ日
50,000円
1,000円
保証2ヶ月

100%
1DK
31.79㎡
マンション 
★ペット可
4階建 H22.3

<部屋番号>    空室

502 501
302 301
201
テナント


物  件  概  要  設   備  
名 称 ポジション5 電 気 中部電力
住 所 静岡県浜松市北区三ヶ日町三ヶ日916-80    ガ ス  プロパンガス 
交 通 天浜線 三ヶ日駅 徒歩3分   上水道  公営(浜松市)
構造/完成 鉄骨4階建 / 平成22年3月  下水道  集中浄化槽
種別/戸数 賃貸マンション / 戸数5・テナント1 駐車場  1台込(2台目~応相談)
 階 数 4階建  電 話 屋内配線有
保険等 火災保険・保証保険加入要 インターネット 環境無
契約更新 2年毎に更新有  ※電話・ネット 契約工事他借主負担
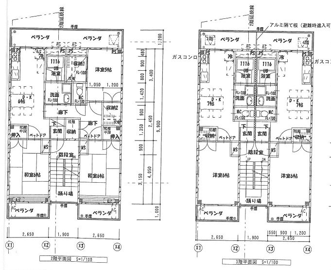
取引態様 仲介 (仲介手数料賃料×1ヶ月+消費税)  間取り  4階 1DK(洋6・DK) 31.79㎡
 3階 1DK(洋6・DK) 31.79㎡
 2階 3DK(和X2・洋5・DK) 65.58㎡
 1階 テナント
 家 賃 50,000円    台所・浴室・トイレ・給湯設備
共益費   1,000円  
区 費      (ガスコンロ・照明器具無)
敷 金 保証2ヶ月  
礼 金  
償 却 100% ★ペット可  


 < その他 >  入居日はお問い合わせください。区費が含まれていない場合、各自治会より徴収されます。
         申込順となり、入居が決定している場合はご容赦ください。