静岡県浜松市浜名区三ヶ日町での住まい探しはお任せください。新築・戸建て・アパート・マンションから、土地探しまで。

                        →賃貸マンション・アパート情報一覧へ戻る

物件情報:ハイツユートピア

hya1.jpg hyk.jpg hybt.jpg hyy1.jpg hyy3.jpg hya2.jpg hyy2.jpg hy.jpg
天竜浜名湖鉄道「東都筑駅」まで徒歩 5分。町内でも人気の都筑エリアにあるアパートです。

  所在地
家賃
共益費
区費
敷金
礼金 
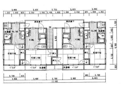
間取
面積
種別
階数 完成
ハイツユートピア
三ヶ日町都筑
40,000円

2ヶ月
1ヶ月
1DK
24.3㎡~
アパート 
2階建 H11.1

<部屋番号>    空室

205
25.11㎡
和6・DK
203
27.14㎡
和7.5・DK
202
27.14㎡
和7.5・DK
201
25.11㎡
和6・DK
105
24.30㎡
和6・DK
103
24.30㎡
和6・DK
102
24.30㎡
和6・DK
101
24.30㎡
和6・DK


物  件  概  要  設   備  
名 称 ハイツユートピア  電 気 中部電力
住 所 静岡県浜松市北区三ヶ日町都筑1120-1  ガ ス  プロパンガス 
交 通 天浜線 東都筑駅 徒歩5分  上水道  公営(浜松市)
構造/完成 重量鉄骨2階建カラーベスト葺 / 平成11年1月  下水道  集中浄化槽
種別/戸数 賃貸アパート 戸数8 駐車場  1台込
    電 話 屋内配線有
保険等 火災保険・保証保険加入要 インターネット 環境無
契約更新 2年毎に更新有  ※電話・ネット契約工事他借主負担
取引態様 仲介 (仲介手数料賃料×1ヶ月+消費税)    
家賃 共益費
区費  
40,000円/ 円
円 
  台所・浴室・トイレ・給湯設備
敷金/礼金  2ヶ月/1ヶ月   
 間 取
面 積
1DK
24.3㎡~ 
  (ガスコンロ・照明器具無)


 < その他 >  入居日はお問い合わせください。区費が含まれていない場合、各自治会より徴収されます。
申込順となり、入居が決定している場合はご容赦ください。